Sign In
Sign-Up
Welcome!
Close
Would you like to make this site your homepage? It's fast and easy...
Yes, Please make this my home page!
No Thanks
Don't show this to me again.
Close
СТАРОУТКИНСК
Индивидуальный жилой дом
ООО
"
КРЕАТИВ
"
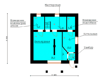
цокольный
этаж
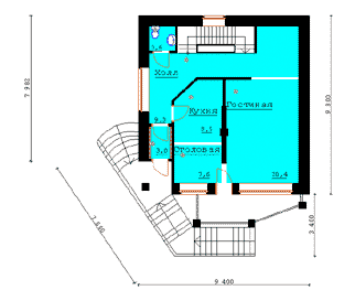
1
этаж
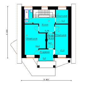
2
этаж
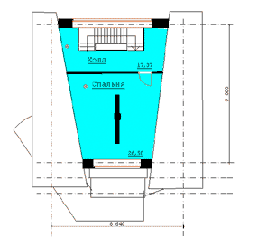
3
этаж